Quadrilocale in vendita

Viterbo, Via Antonio Rosmini - Viterbo Cappuccini
€ 129.000
4 locali 4 locali
95 Mq 95 Mq
2 bagni 2 bagni

Quadrilocale in vendita

Viterbo, Via Antonio Rosmini - Viterbo Cappuccini

Descrizione annuncio

ZONA BARCO - APPARTAMENTO DUE CAMERE, DUE BAGNI E GIARDINO!

Via Antonio Rosmini - In zona residenziale e con tanto verde, ma servita da supermercati, bar, farmacia, scuole e tanto altro, vi proponiamo in vendita UN DELIZIOSO APPARTAMENTO CON GIARDINO posto al piano terra di una piccola palazzina anni '90.

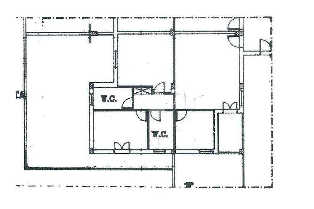
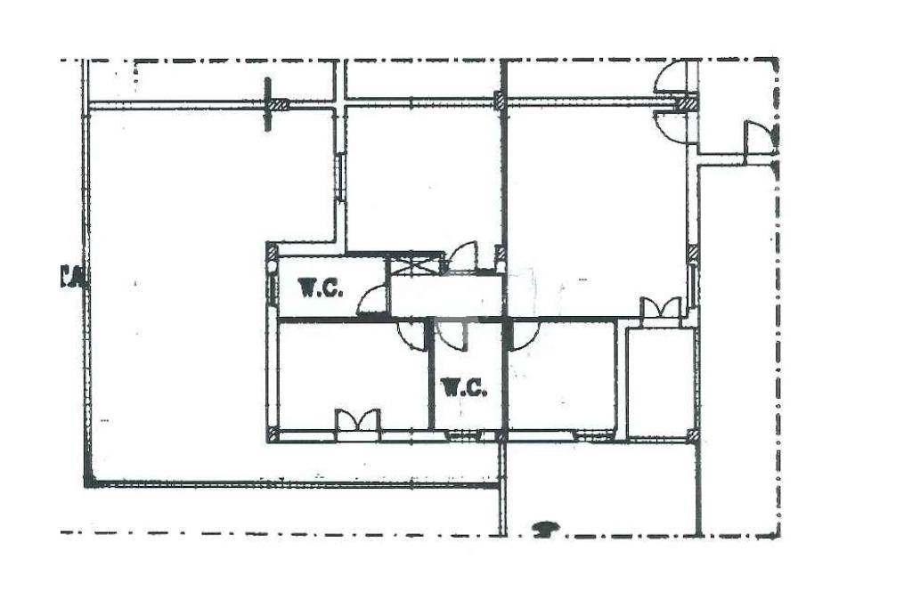
L'abitazione si sviluppa su una superficie interna di 85 mq, si presenta in buono stato e si compone di:

-Ampio soggiorno

-Cucina abitabile

-Due camere (una matrimoniale e una media)

-Due bagni finestrati

-Giardino di 60 mq (metà verde e metà mattonato)

-Ed un balcone.

Gli spazi interni sono perfettamente distribuiti con una netta separazione tra zona giorno e zona notte, ma la presenza di tutti tramezzi ti permette di personalizzarla come meglio si desidera!

RARA SOLUZIONE DA TROVARE PER LA SUA TIPOLOGIA E PER LA SUA UBICAZIONE!

Libera da subito.

Mostra tutto

Nelle vicinanze

Trasporto pubblico Trasporto pubblico
Viterbo Porta Romana
Viterbo Porta Romana
990 m
Viterbo
Viterbo
1,9 Km
Trasporto pubblico
550 m
Viterbo Porta Romana
Viterbo Porta Romana
1,1 Km
Ricariche auto elettriche Ricariche auto elettriche
BeCharge Distributore Enerpetroli Viterbo
2,2 Km
Punto Enel di Viterbo
2,5 Km
ADS Esso | BeCharge
2,9 Km
Scuole Scuole
Scuole Pubbliche Medie "Pietro Vanni"
580 m
Istituto Comprensivo "Canevari"
660 m
Università degli Studi della Tuscia
790 m
Accademia di Belle Arti Lorenzo da Viterbo
890 m
Istituto Tecnico Commerciale “Paolo Savi”
1,1 Km
Farmacia Farmacia
Farmacia
620 m
Farmacia Rossi
1,1 Km
Farmacia dei Cappuccini
1,2 Km
Farmacia Giacci
1,8 Km
Farmacia Del Carmine
1,8 Km
Ospedali Ospedali
Ospedale Belcolle
2,0 Km
Supermercati Supermercati
Lidl
290 m
COOP
800 m
EMME Più
1,0 Km
IperEmme Più
1,0 Km
sidis
1,2 Km
Negozi Negozi
Delizie del Borbone
960 m
Old Town Store
1,0 Km
United Colors of Benetton
1,1 Km
Vaporforno
1,3 Km
Minimirket
1,3 Km
Bar Bar
Glitter Cafe
1,1 Km
DWHITE
1,5 Km
San Leonardo
1,5 Km
Blitz Caffè
1,6 Km
Baretto 2.0
1,6 Km
Ristoranti Ristoranti
Shizen
620 m
Ristorante Pizzeria San Valentino
750 m
Da Giulio
970 m
Le Mura
1,1 Km
Osteria San Sisto
1,1 Km
Mostra tutto

Caratteristiche

Rif.:
61143348
Piano:
1 di 4 con ascensore (Piano terra)
Balconi:
1
Camere da letto:
2
Arredamento:
Assente
Condizionamento:
Assente
Mostra tutto
Prezzo Prezzo
€ 129.000
Rata mutuo Rata mutuo
€ 609 / mese
Spese annue Spese annue
€ 420
Proponi il tuo prezzoProponi il tuo prezzo

Classe Energetica

F
F
F
F
F
F
F
F
F
EP globale non rinnovabile:
175.00 kW h/m² anno
EP globale rinnovabile:
175.00 kW h/m² anno
EP invernale del fabbricato:
EP estiva del fabbricato:
Anno di costruzione:
1990
Riscaldamento:
Autonomo
Tipo impianto:
A radiatori
Tipo alimentazione:
Metano

Ti interessa visionare l'immobile?

Fissa un appuntamento  Fissa un appuntamento

Richiedi informazioni

Clicca su Leggi per aprire l'informativa
* Questi campi sono obbligatori

Calcola il tuo mutuo

Semplice e senza impegno
Anticipo

( % )
Mutuo

( % )

pochi semplici passi

inserisci i tuoi dati
Questionario completato
Grazie per aver richiesto un appuntamento senza impegno con un nostro Consulente del Credito e Assicurativo.

Hai inserito correttamente tutti i dati necessari e a breve riceverai una e-mail con un link da convalidare per inviare i tuoi dati.
Affiliato
Mida Srls
Via Monte Nevoso, 4 01100 Viterbo (VT)

Il nostro staff


  • Mirko Guerrini
    Affiliato

  • Terry Riccio
    Responsabile

  • Giuseppe Troiani
    Collaboratore
Via Monte Nevoso, 4 01100 Viterbo (VT)
Zona: Viterbo Cappuccini-Murialdo-Pila-Barco-Paradiso
Mostra su mappa
Affiliato
Mida Srls
Via Monte Nevoso, 4 01100 Viterbo (VT)

2025 Tecnocasa Franchising S.p.A. - P. IVA 08365160152 - Via Monte Bianco 60/A 20089 Rozzano (MI). Ogni agenzia ha un proprio titolare ed è autonoma. Privacy policy | Policy utilizzo | Cookie policy