 
			 
				ULTIMO PIANO DI RECENTE COSTRUZIONE!
ZONA CAPPUCCINI - VIA GENOVA
In zona servitissima e centrale, a ridosso del centro storico della città, vi proponiamo un delizioso ULTIMO PIANO con ascensore di RECENTE COSTRUZIONE del 2020 con TERRAZZO, GARAGE E CANTINA!
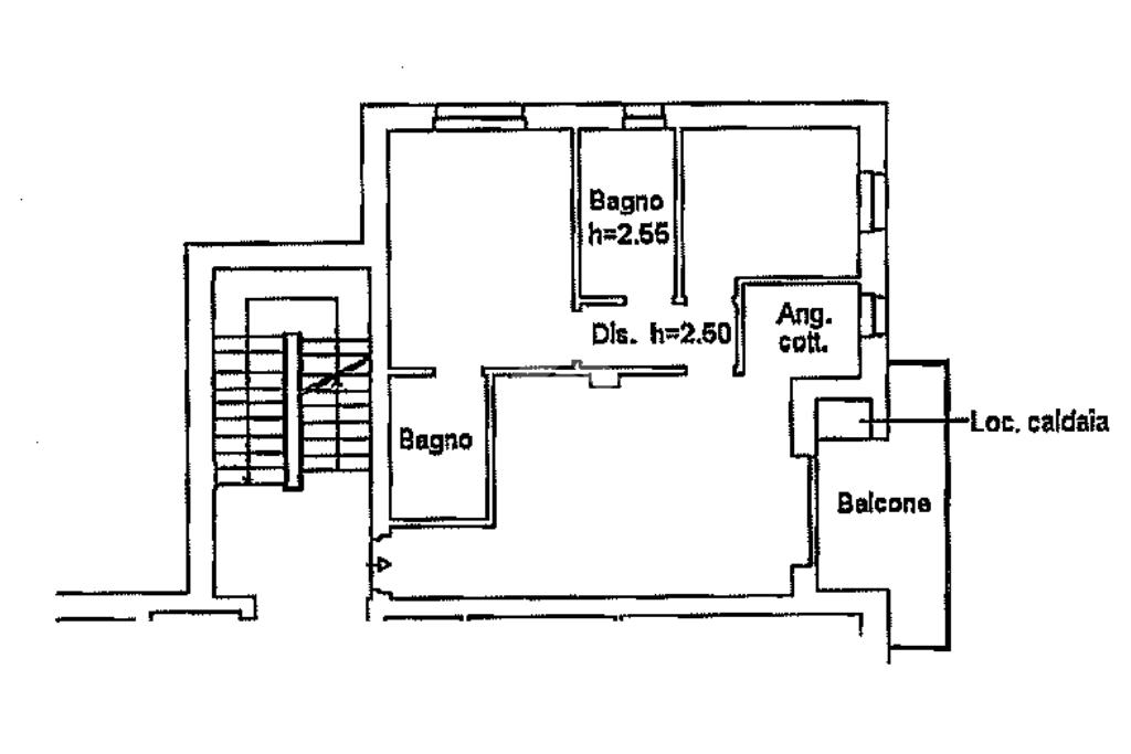
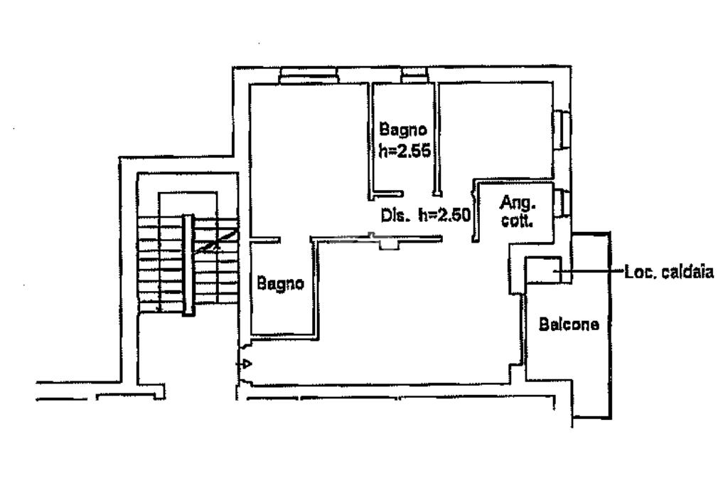
L'abitazione si presenta in condizioni PARI AL NUOVO (abitato solo un anno e mezzo), ha una superficie calpestabile di 80 mq, gode di una doppia esposizione (EST - OVEST) e si compone di:
-Soggiorno con angolo cottura con accesso al TERRAZZO ABITABILE con locale caldaia
-Due camere (una matrimoniale e una media)
-E due bagni entrambi con doccia, uno interno alla camera padronale e uno principale finestrato.
La soluzione possiede, inoltre:
-CLASSE ENERGETICA MASSIMA A4
-PANNELLI SOLARI PER PRODUZIONE ENERGIA ELETTRICA
-RISCALDAMENTO E RAFFRESCAMENTO AUTONOMO AD ARIA
-COSTRUZIONE ANTISISMICA
Per chi lo desidera, compreso nel prezzo, viene lasciato anche il mobilio della cucina e dei bagni.
Completano la proprietà un GARAGE DI 25 MQ e una CANTINA DI 7 MQ!
Prezzo ridotto di €1 (5%%)
Ti interessa visionare l'immobile?